您好,SONCAP,SONCAP認證,歡迎訪問杭州諾莫檢測技術有限公司官方網站!
服務熱線400-6177-880
聯系方式
電話:+86-
傳真:+86-
郵箱:
地址:浙江省杭州市濱江區江陵路88號9幢
伊拉克-空調產品需強制加貼能效標簽
據伊拉克法律第54號第3章第8條,伊拉克中央標準質量控制局(COSQC)于2011年5月1日開始實施進口前檢驗、測試及認證計劃(ICIGI),旨在限制不符合標準,假冒、偽劣產品進口到伊拉克,及保護其國內消費者、生產商、環境和公共安全。管控范圍內的產品,進口到伊拉克必須隨附符合性證書Certificate of Conformity (CoC)進行清關。
空調產品需強制加貼能效標簽
COSQC于2016年10月1日起對空調產品實行加貼能效標識要求。該要求于2017年4月6日起強制執行。 請注意!各位在申請CoC時需要同時提供安規測試報告+能效測試報告(ISO 5151)并在產品上加貼能效標簽。
● 能效標簽(EEL)
需清晰地貼在空調和其產品外包裝上
文字為英文和阿拉伯文
能效標簽需顯示以下內容:
- 制造商名稱或商標
- 額定功率輸入(KW)
- 總制冷量(BTU / h)
- 額定能效比(EER)
- 操作系統(僅制冷/制冷+制熱)
- 加熱量(瓦)
- 年度能源消耗(KWh)

● 能效等級
Class | Energy Efficiency Ratio for Air Conditional (Windows,single Split) (BTU/h) Watt |
A | EER≥11 |
B | 11>EER≥10.5 |
C | 10.5>EER≥9.5 |
D | 9.5>EER≥9 |
E | 9>EER≥8.5 |
F | 8.5>EER≥8 |
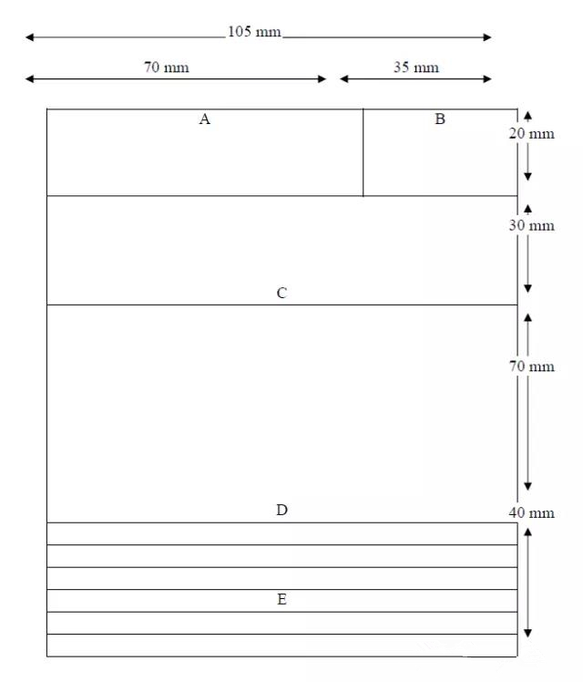
● 標簽尺寸

具體問題請咨詢NormalTCI諾莫檢測
全國統一服務熱線:400-6177-880
Email: